Quadrilocale in vendita

Roma, Via Pescaglia - Magliana
€ 339.000
4 locali 4 locali
115 Mq 115 Mq
2 bagni 2 bagni

Quadrilocale in vendita

Roma, Via Pescaglia - Magliana

Descrizione annuncio

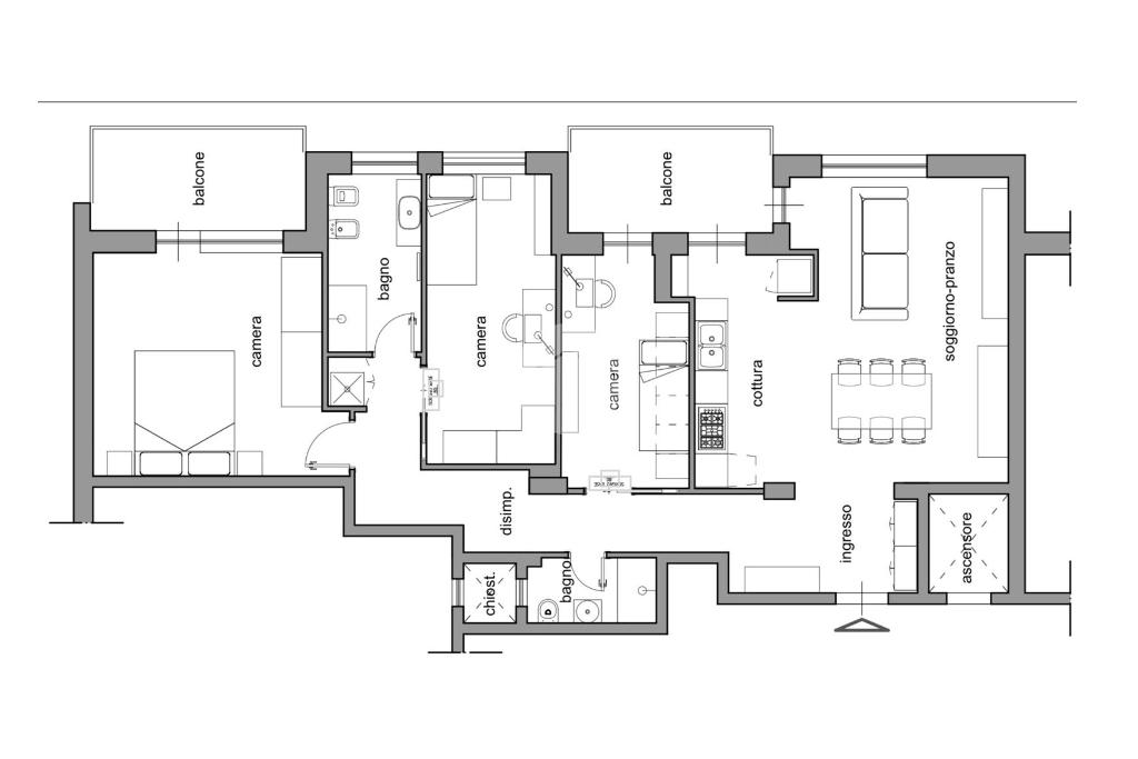
QUADRILOCALE DI 115 MQ .

Sei alla ricerca di un quadrilocale molto luminoso, completamente e finemente ristrutturato? Questa soluzione potrebbe fare proprio al caso tuo.

Situato in una posizione centrale e facilmente raggiungibile, a pochi passi dai principali servizi e della zona.

La Tecnorete Magliana Nuova Mediazioni ti propone questo incantevole quadrilocale di 115 mq, ubicato ad un piano alto in una posizione centrale in un ottimo condominio con servizio di portineria, recentemente ristrutturato e rifinito con cura e attenzione ai immobile offre un ambiente accogliente e luminoso, perfetto per chi cerca un luogo dove vivere nel totale confort con la famiglia.

L'immobile è stato ristrutturato utilizzando materiali di alta qualità e soluzioni innovative per garantire un ambiente accogliente e funzionale. Il soggiorno di 32 mq. con cucina a vista è molto spazioso, con ampie finestre e servito dalla prima balconata. Percorrendo il disimpegno abbiamo l'accesso alle camere, ben illuminate e comode, con la camera matrimoniale servita dalla seconda balconata. La casa è dotata di numerosi armadi a muro per sfruttare al meglio gli spazi che offre. I bagni sono stati rifiniti con cura, con due docce moderne.


L'immobile è dotato di tutti i comfort moderni, condizionatori Mitsubishi, connessione internet e TV satellitare e completano la proprietà una soffitta e un posto auto coperto di pertinenza.




COMMENTO DELL'AGENTE IMMOBILIARE:

Questo appartamento è ideale per chi cerca una soluzione pronta con tutte le comodità senza doversi preoccupare di ristrutturare e soprattutto per chi vuole un ampio spazio sia interno che esterno da vivere a pieno in famiglia o in compagnia di amici.

Mostra tutto

Nelle vicinanze

Trasporto pubblico Trasporto pubblico
EUR Magliana
EUR Magliana
990 m
Marconi
Marconi
1,4 Km
Basilica San Paolo
Basilica San Paolo
1,8 Km
Trasporto pubblico
2,8 Km
Gianicolense/San Camillo
Gianicolense/San Camillo
2,5 Km
Ricariche auto elettriche Ricariche auto elettriche
Garage Berardo | EnelX
460 m
Roma Val Fiorita | EnelX Fast
1,0 Km
Roma Val Fiorita | EnelX
1,1 Km
Eneldrive Palazzo della Civiltà Italiana
1,3 Km
Roma Industria | EnelX
1,7 Km
Scuole Scuole
Scuole
210 m
Roma Tre - Facoltà di Scienze Matematiche, Fisiche e Naturali
810 m
Istituto Paritario "A. Ruiz"
1,1 Km
Roma Tre - Dipartimento di Fisica "Edoardo Amaldi"
1,1 Km
Roma Tre - Facoltà di Ingegneria
1,1 Km
Farmacia Farmacia
Farmacia
250 m
Parafarmacia doc*Frattini
1,1 Km
Farmacia
1,2 Km
Farmacia Sant'Anna
1,3 Km
Farmacia degli Speziali
1,5 Km
Ospedali Ospedali
Ospedale Pediatrico Bambino Gesù - Sede di via Baldelli
1,6 Km
Ospedale Pediatrico Bambino Gesù - Sede di San Paolo
1,7 Km
Ospedale Carlo Forlanini
2,0 Km
Istituto nazionale per le malattie infettive "Lazzaro Spallanzani"
2,0 Km
European Hospital
2,0 Km
Supermercati Supermercati
Lidl
340 m
doc*Frattini
1,0 Km
Supermercati
1,2 Km
Conad City
1,5 Km
Todis
1,5 Km
Negozi Negozi
Negozi
1,1 Km
Elettroforno Frontoni
1,6 Km
Barbara
1,6 Km
Il mercatino delle birbe
1,7 Km
Fellini
1,7 Km
Bar Bar
Bistrot 139
1,1 Km
Fiesta
1,2 Km
Bar
1,4 Km
Bar Filippi
1,5 Km
Explusiv Bar
1,7 Km
Ristoranti Ristoranti
Mattarello
180 m
Antica Posta
950 m
Associazione Culturale Foodball
1,0 Km
Ristoranti
1,1 Km
Ciclostazione Frattini
1,1 Km
Mostra tutto

Caratteristiche

Rif.:
61125596
Piano:
6 di 7 con ascensore (Piano alto)
Posti auto:
1
Balconi:
2
Camere da letto:
3
Arredamento:
Parziale
Mostra tutto
Prezzo Prezzo
€ 339.000
Rata mutuo Rata mutuo
€ 1.600 / mese
Spese annue Spese annue
€ 900
Proponi il tuo prezzoProponi il tuo prezzo

Classe Energetica

F
F
F
F
F
F
F
F
F
EP globale non rinnovabile:
175.00 kW h/m² anno
EP globale rinnovabile:
175.00 kW h/m² anno
EP invernale del fabbricato:
EP estiva del fabbricato:
Anno di costruzione:
1967
Riscaldamento:
Centralizzato
Tipo impianto:
A radiatori
Tipo alimentazione:
Metano

Ti interessa visionare l'immobile?

Fissa un appuntamento  Fissa un appuntamento

Richiedi informazioni

Clicca su Leggi per aprire l'informativa
* Questi campi sono obbligatori

Calcola il tuo mutuo

Semplice e senza impegno
Anticipo

( % )
Mutuo

( % )

pochi semplici passi

inserisci i tuoi dati
Questionario completato
Grazie per aver richiesto un appuntamento senza impegno con un nostro Consulente del Credito e Assicurativo.

Hai inserito correttamente tutti i dati necessari e a breve riceverai una e-mail con un link da convalidare per inviare i tuoi dati.
Affiliato
Magliana Nuova Mediazioni Srls
Via Ernesto Nathan, 9 00146 Roma (RM)

Il nostro staff


  • Giordano Fusco
    Affiliato

  • Cinzia Pacenza
    Collaboratrice

  • Ilenia Cirilli
    Coordinatrice
Via Ernesto Nathan, 9 00146 Roma (RM)
Zona: Magliana
Mostra su mappa
Orari: Lunedì-Venerdì 9:00/13:00 - 15:30/19:30 Sabato 9:00/13:00
Affiliato
Magliana Nuova Mediazioni Srls
Via Ernesto Nathan, 9 00146 Roma (RM)

2025 Tecnocasa Franchising S.p.A. - P. IVA 08365160152 - Via Monte Bianco 60/A 20089 Rozzano (MI). Ogni agenzia ha un proprio titolare ed è autonoma. Privacy policy | Policy utilizzo | Cookie policy